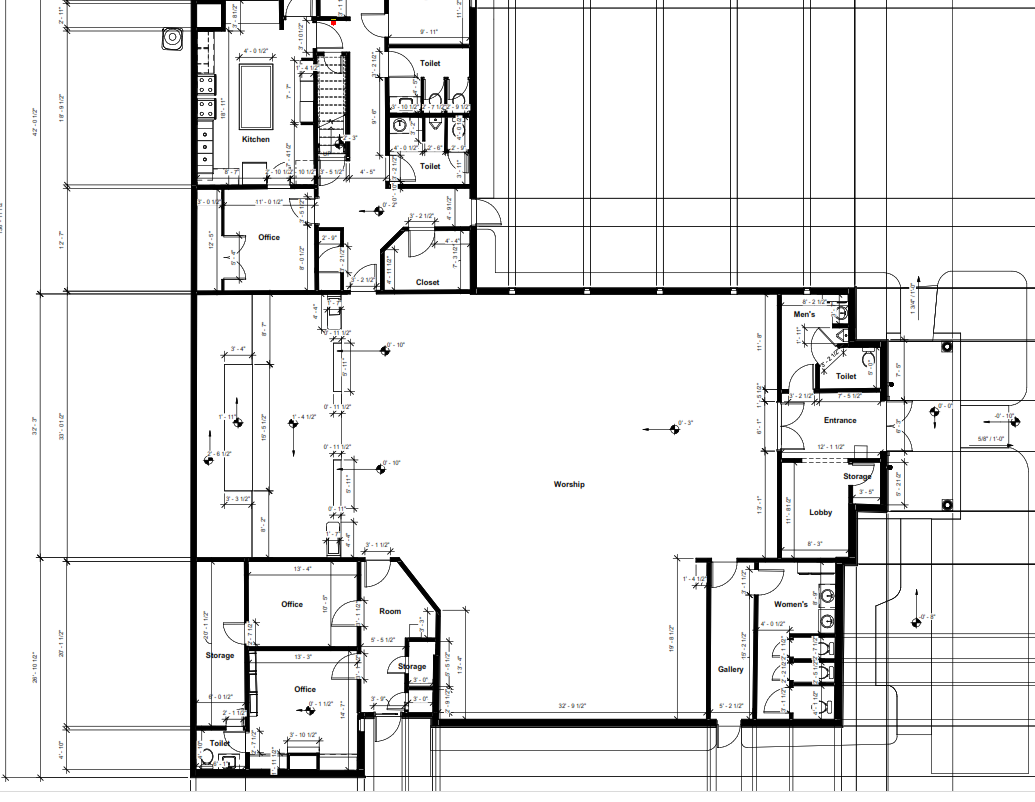
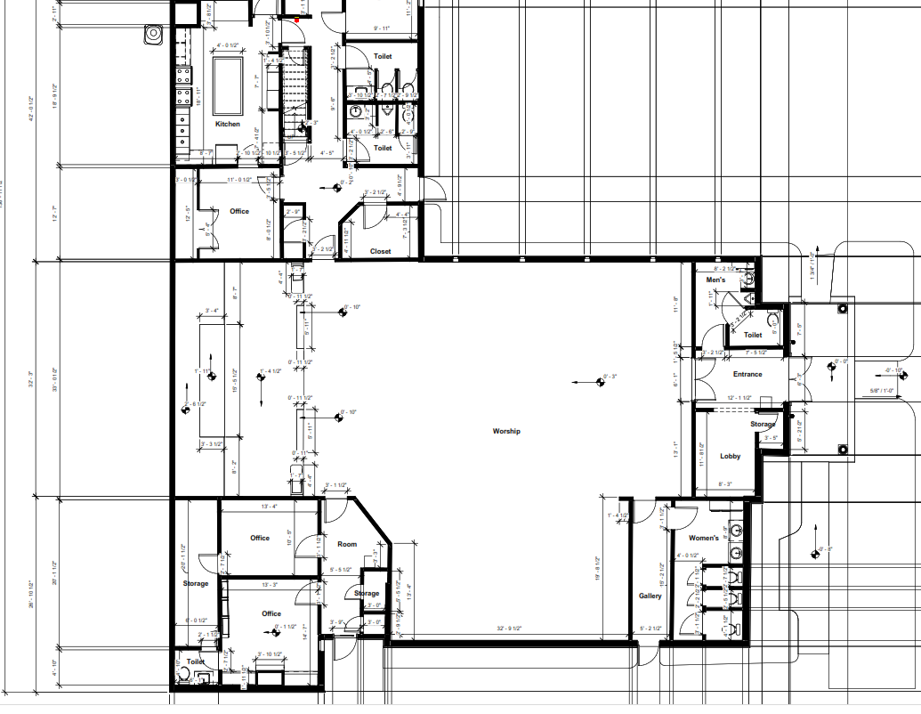
Floor Plan measurements

Accurate Floorplan Measurements

Accurate floorplan measurements are the foundation upon which successful projects and property transactions are built. In this article, we’ll explore the significance of precise measurements and how they can help you avoid the painstaking process of building documentation. Trust us to handle the intricacies of accurate measurements while you focus on what truly matters.

The Importance of Accurate Floorplan Measurements

Avoid Costly Errors: When dealing with construction or real estate, even the slightest measurement error can result in significant financial setbacks. Accurate floorplan measurements help in minimizing costly mistakes during design, construction, or renovations.

Streamlined Planning: Accurate measurements provide a clear and reliable foundation for project planning. Architects, engineers, and contractors can make informed decisions and create more efficient, cost-effective designs.

Transparency in Real Estate: In the world of real estate, trust is essential. Precise floorplan measurements build trust between buyers, sellers, and real estate agents. Accurate documentation helps avoid disputes and fosters smoother transactions.

Legal Compliance: Many regions have strict regulations regarding building dimensions and property boundaries. Accurate floorplan measurements are crucial for ensuring legal compliance and avoiding potential legal issues down the road.

The Hassle of Building Documentation

Time-Consuming: Creating detailed building documentation can be a time-consuming process. It involves measuring each room, wall, and feature, followed by meticulous recording and drafting. This is time that could be better spent on other aspects of your project or property transaction.

Potential for Errors: Manual measurements are prone to errors. Even the most careful individuals can make mistakes. These errors can lead to misunderstandings, costly revisions, and project delays.

Professional Expertise Required: Achieving precise measurements often requires professional knowledge and equipment, such as laser distance meters and CAD software. Without these resources, it’s challenging to ensure the accuracy of your documentation.

Let Us Save You the Hassle

Accuracy Guaranteed: When you entrust accurate floorplan measurements to professionals, you can be confident in the accuracy of your documentation. This minimizes the risk of errors that could set you back in time and money.

Time-Efficient: Professional measurement services are efficient and can save you a substantial amount of time. They have the tools and expertise to complete the job quickly and accurately, allowing you to move forward with your project or transaction.

Peace of Mind: By outsourcing floorplan measurements, you gain peace of mind knowing that your project or property transaction is based on accurate, reliable data. This reduces the likelihood of disputes or complications in the future.

Focus on Your Priorities: While professionals handle the measurements, you can focus on the more critical aspects of your project or property transaction, such as design, negotiation, or construction management.

Accurate floorplan measurements are the bedrock of successful projects and real estate transactions. By enlisting the help of professionals, you can avoid the hassle of building documentation, saving time, money, and potential headaches. Trust experts to deliver precision, and you can move forward with confidence in your construction or real estate endeavors.

Scroll to top